

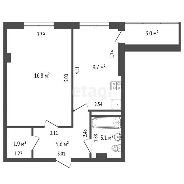
Планировка
Карта

3D-планировка














Хотите скидку?
Предложите свою стоимость!
Описание
Изменено: 13.02.26
Квартира расположена в одноподъездном доме на 29 квартир, что обеспечивает камерность и спокойную атмосферу. Планировка включает изолированные комнаты, при этом окна гостиной, кухни и лоджии выходят на солнечную южную сторону во двор. Над квартирой находится технический этаж, что гарантирует отсутствие шумных соседей сверху. На этаже предусмотрено общее кладовое помещение площадью около 2,5 кв. м для хранения. Объект находится в единоличной собственности с 2011 года. В квартире выполнен косметический ремонт, однако требуется замена ламината в гостиной. При продаже остается вся встроенная мебель и кухонный гарнитур со встроенной стиральной машиной, а также вся бытовая техника: газовая панель, электрический духовой шкаф, холодильник и кондиционер в гостиной. Инженерные коммуникации центральные: отопление, горячее и холодное водоснабжение, канализация, электроснабжение; в доме установлен домофон.
Ключевое преимущество — исключительно удобное расположение в шаговой доступности от всей необходимой инфраструктуры. В пяти минутах ходьбы находятся детский сад №229, стадион «Арсенал», продовольственные магазины, аптеки, фитнес-клубы и стоматологическая поликлиника №4. В десяти минутах — парк «Аллея Роз», общеобразовательная школа №61, отделения банков, городская больница с поликлиникой №20 и детская поликлиника №45. В пятнадцати минутах пешком, на улице Коммунистической, расположены крупные торговые центры и зоны отдыха. Таким образом, объект предлагает редкое сочетание приватности жилого пространства и максимальной доступности социальных, спортивных, медицинских и торгово-развлекательных объектов.
Характеристики
- Код объекта11776502
- Общая площадь38.6 м²
- Площадь кухни9.7 м²
- РемонтСовременный ремонт
- Год постройки2009
- Этаж/Этажность10 из 10
- СтеныМонолитно-Каркасные
Что-то не так с объявлением?
Сообщите нам, и мы разберёмся в проблеме
- Главная
- Квартиры
- Однокомнатные квартиры
- Советский
- Извилистая
- Код объекта 11776502
